
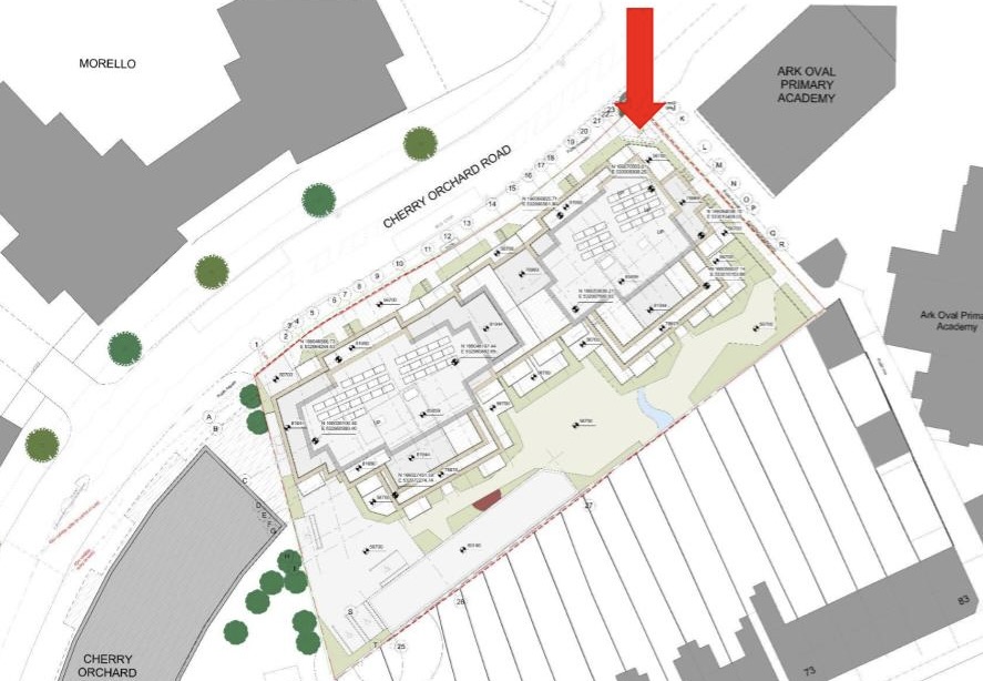
Artist Kerry Lemon has been commissioned to create a permanent public artwork on the corner of the flats currently being built on the former site of Cherryfields, Cherry Orchard Road.
As part of the project, she is offering a free online talk for local people through TURF Projects, focusing on the process of securing and delivering public art commissions. Kerry will share her concept designs during the session.
Tues 17th FEB 26 at 7-8pm on ZOOM
Join Zoom Meeting
https://us02web.zoom.us/j/88150906262
Meeting ID: 881 5090 6262
Join instructions
https://us02web.zoom.us/meetings/88150906262/invitations?signature=gNRBPS-g0Nh6NhUfZsP5pMF03ePxamWnL2PoFnOSmIQ
Kerry has already created a public art work in Croydon, located in a new housing development in Waddon. You can read more about it here and find it at the end of Old School Lane, just to the east of Duppas Hill (detailed map below).

